🏡 Timmerstuga med terrass Hymer – 52 m²
Timmerstuga med terrass – modellen ”Hymer” är en rymlig trähuslösning med fyra rum, en integrerad 10 m² terrass och en funktionell planlösning. Totalt erbjuder stugan 52 m², inklusive ett badrum, vilket gör den idealisk som gäststuga, sommarstuga eller trädgårdsstuga. Dessutom skapar den smarta utformningen en bekväm boendemiljö, samtidigt som den naturliga träkänslan ger en varm och välkomnande atmosfär året runt.
📐 Tekniska specifikationer – Timmerstuga med terrass Hymer 52 m²
| Parameter | Specifikation |
|---|---|
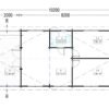
| Yttermått | 10200 × 5200 mm (inkl. terrass) |
| Stugdelens mått | 8200 × 5200 mm |
| Terrass | 10.00 m² |
| Rumsstorlekar |
|
| Total invändig yta | 37.45 m² |
| Total byggyta | 42.00 m² |
| Antal rum | 3 rum + badrum |
| Väggtjocklek | 44 mm standard (valfritt: 66 mm eller 44+44 mm) |
| Material | Certifierad nordisk gran eller furu |
| Taktyp | Sadeltak med 12° lutning |
| Takarea | 60.00 m² |
| Takbrädor | 18–20 mm spontade brädor |
| Golv | 19–20 mm spontade brädor (valfritt) |
| Lägsta vägghöjd | 223 cm |
| Nockhöjd | 277 cm |
| Dörrar | Ytterdörr: 1 st – 161 × 192 cm Innerdörrar: 3 st – 85 × 192 cm |
| Fönster | 5 st – 138 × 105 cm 1 st – 50 × 50 cm |
| Fönsterluckor | Valfritt |
Produktbeskrivning
Stugan levereras komplett med alla viktiga detaljer, vilket gör monteringen smidig och tydlig. Dessutom ingår flera praktiska komponenter för bästa möjliga resultat.
- Fönster med isolerglas
- Dörrlås med cylinder och nyckel
- Justerbara gångjärn för dörrar och fönster
- Spik och skruvar för montering
- Detaljerad monteringsanvisning medföljer
Leveransvillkor
Vi levererar produkten så nära som möjligt den plats där transportfordonet kan stanna. Därför är det viktigt att ha fri tillgång till leveransplatsen.
Lastbil utan kran: Kunden ansvarar själv för att lossa varan vid ankomst.
Kranleverans: Vi kan erbjuda kranlossning mot en extra kostnad.
Fri frakt: Gäller för postnummer 10–19, 20–29, 30–37, 38–39, 41–44 samt 45–47 och 50–52, 53–59. För andra områden tillkommer fraktkostnad.

























































